阿久比町大字宮津 エコタウン宮津E-12区画

3,580万円

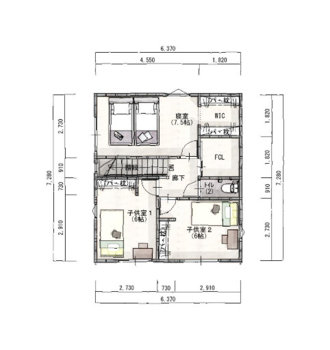
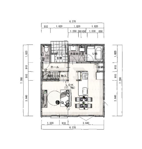
3LDK / 91.10㎡

管理費:-

敷:- / 礼:-

他にかかる料金を見る

阿久比町「エコタウン宮津」に誕生した新築戸建て!
3LDK+車3台駐車可能で、来客時も安心のゆとりある住まいです。
家族の荷物をまとめて収納できるファミリークロークを備え、住空間をすっきり保てます。


物件情報

基本情報

物件名 阿久比町大字宮津 エコタウン宮津E-12区画
価格 3,580万円 管理費 -
修繕積立金 - 間取り 3LDK
建物面積 91.10㎡ 土地面積 45.61坪(150.80㎡)
バルコニー面積 - 種別/構造 新築一戸建/木造
築年月 2026年1月(新築) 所在階 -/2階建
方角 - 土地権利 所有権
借地料 - 用途地域 第一種中高層住居専用
総戸数 14戸 所在地 愛知県知多郡阿久比町大字宮津字小廻間1-164
交通

名鉄河和線阿久比」駅 徒歩18分

名鉄河和線坂部」駅 徒歩19分

リフォーム
リノベーション その他条件

詳細情報

設備条件
  • 陽当り良好
  • 閑静な住宅地
  • 都市ガス
  • 公営水道
  • 公共下水
  • オール電化
  • 電気有
  • 駐車3台可
  • 食器洗い乾燥機
  • 対面式キッチン
  • 浴室乾燥機
  • 温水洗浄便座
  • トイレ2ヶ所
  • 独立洗面台
  • ウォークインクロゼット
  • 食品庫
  • TVモニタ付インターホン
駐車場/月額 -/- 土地権利 所有権
国土法届出 不要 用途地域 第一種中高層住居専用
取引態様 仲介 現況 完成済み
引渡し 相談 物件番号 101216564
情報更新日 2026年03月06日 更新予定日 2026年03月20日
備考 ※水道負担金・検査手数料・水道メーター工事費用あり
  • セブンイレブン 阿久比宮津団地店の画像

    コンビニエンスストア

    セブンイレブン 阿久比宮津団地店

    612m(8分)

  • Felna(フェルナ)蟹田橋店の画像

    スーパー

    Felna(フェルナ)蟹田橋店

    1240m(16分)

  • 阿久比町立英比小学校の画像

    小学校

    阿久比町立英比小学校

    1624m(21分)

  • 阿久比町立阿久比中学校の画像

    中学校

    阿久比町立阿久比中学校

    1680m(21分)

担当者コメント(石川篤貴)

阿久比町「エコタウン宮津」に誕生した新築戸建て!
3LDK+車3台駐車可能で、来客時も安心のゆとりある住まいです。
家族の荷物をまとめて収納できるファミリークロークを備え、住空間をすっきり保てます。

阿久比町大字宮津 エコタウン宮津E-12区画

阿久比町大字宮津 エコタウン宮津E-12区画

3,580万円

-

3LDK(91.10㎡)

お気軽にお問い合わせください

無料お問い合わせ

株式会社エスティネット 売買部

フリーダイヤルアイコン0120-72-0237

10:00~18:00

(定休日 水曜日)