阿久比町大字宮津 エコタウン宮津E-12区画

3,580万円

管理費-

間取り / 建物面積
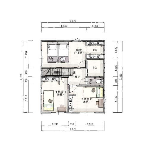
3LDK / 91.10㎡
築年
2026年1月(新築)
所在地
愛知県知多郡阿久比町大字宮津字小廻間1-164
駐車
-
交通

名鉄河和線阿久比」駅 徒歩18分

名鉄河和線坂部」駅 徒歩19分

物件情報

基本情報

物件名 阿久比町大字宮津 エコタウン宮津E-12区画
価格 3,580万円 管理費 -
建物面積 91.10㎡ 土地面積 45.61坪(150.80㎡)
築年月 2026年1月(新築) 総戸数 14戸
所在地 愛知県知多郡阿久比町大字宮津字小廻間1-164 交通

名鉄河和線阿久比」駅 徒歩18分

名鉄河和線坂部」駅 徒歩19分

詳細情報

設備条件
  • 閑静な住宅地
  • 駐車3台可
駐車場/月額 - / - 土地権利 所有権
国土法届出 不要 用途地域 第一種中高層住居専用
取引態様 仲介 現況 完成済み
引渡し 相談
  • セブンイレブン 阿久比宮津団地店の画像

    コンビニエンスストア

    セブンイレブン 阿久比宮津団地店

    612m(8分)

  • Felna(フェルナ)蟹田橋店の画像

    スーパー

    Felna(フェルナ)蟹田橋店

    1240m(16分)

  • 阿久比町立英比小学校の画像

    小学校

    阿久比町立英比小学校

    1624m(21分)

  • 阿久比町立阿久比中学校の画像

    中学校

    阿久比町立阿久比中学校

    1680m(21分)

阿久比町大字宮津 エコタウン宮津E-12区画

3,580万円

-

3LDK(91.10㎡)

お気軽にお問い合わせください

無料お問い合わせ

株式会社エスティネット 売買部

フリーダイヤルアイコン0120-72-0237

10:00~18:00

(定休日 水曜日)